- Büro / Gewerbe
- Wohn- und Geschäftshaus -Baulückenschließung- Troisdorf
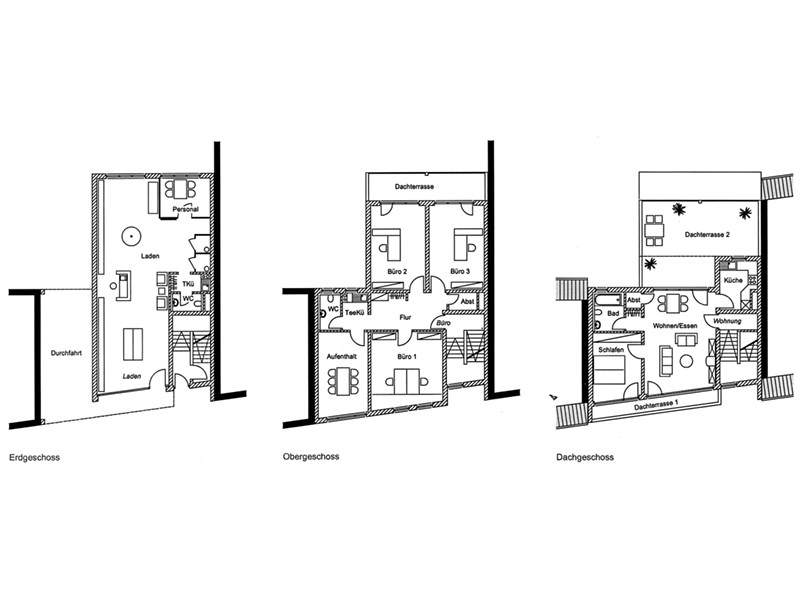
Bewusste Wechsel in der Betonung der vertikalen und horizontalen Linien erzielen Dynamik und Format,
das große Rundfenster setzt einen zusätzlichen Akzent. Die lebhafte Mischung von Gewerbe, Büro und
Wohnen garantiert eine optimale Flächenausnutzung auf kleinstem Raum.
das große Rundfenster setzt einen zusätzlichen Akzent. Die lebhafte Mischung von Gewerbe, Büro und
Wohnen garantiert eine optimale Flächenausnutzung auf kleinstem Raum.