- Wohnbauten
- Einfamilienhaus mit Einliegerwohnung Niederkassel-Lülsdorf
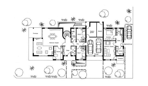
Durch seine geradlinige und klare Architektur strahlt dieses Einfamilienhaus eine moderne
und doch klassisch-zeitlose Eleganz aus. Der großzügige Wohn- / Essbereich bildet mit seiner
Raumhöhe über zwei Ebenen und offener Galerie das kommunikative Zentrum des Hauses.
und doch klassisch-zeitlose Eleganz aus. Der großzügige Wohn- / Essbereich bildet mit seiner
Raumhöhe über zwei Ebenen und offener Galerie das kommunikative Zentrum des Hauses.
